HP 160 (6+kk) - cena na klíč vč. 14% DPH: 3.298.000 Kč bez dvojgaráže
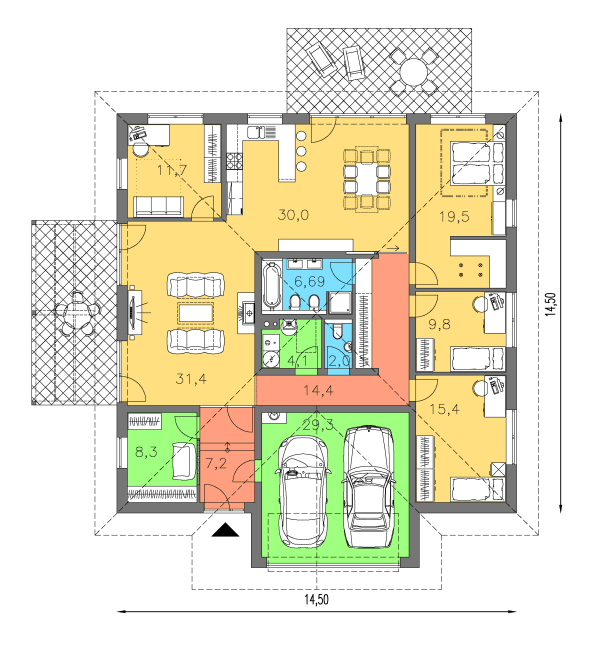
HP 160 • moderní dům větší velikostní kategorie bez suterénu poskytuje komfortní bydlení 5-6 členné domácnosti • vhodný na převážně rovinatý, případně mírně svahovitý terén • rozdělená denní a noční část • moderní dispozice a jasně definované prostory • umístění krbu umožňuje vytápění domu • předností je vestavěná dvojgaráž • v časti půdy je prostor vhodný na skladování • možnost realizovat terasu ve variantě v napojení na obývací pokoj nebo kuchyni • komfort zvyšuje prostorný šatník, případně realizovaný jako pracovna.

Celková užitná plocha: 160 m2
užitná plocha vč. dvojgaráže 189.8 m2
Výška hřebene střechy: 5.855m
Sklon střechy: 19º
Podlahová plocha: 160 m2 (bez dvojgaráže)
Kompletní cena na klíč vč. 14% DPH: 3.298.000,- Kč bez dvojgaráže
Kompletní cena na klíč vč. dvojgaráže a 14% DPH 3.914.000,- Kč
Cena obsahuje: Kompletní projektovou dokumentaci a vyřízení stavebního povolení, základovou desku, stavbu domu "na klíč" v uvedených standartech, 14% DPH. Stavbu je možné předat po dohodě v pokročilé hrubé stavbě a nebo před dokončením.
